+86 514 8860 5577
sales@pureologycn.com
中文版
Home
About us
Industries
Biopharmaceuical
Food And Beverage
Industrial
Sea Water Desalination
Laboratory Furniture
products
Engineering
Building Centralized Water Supply
Clean Room
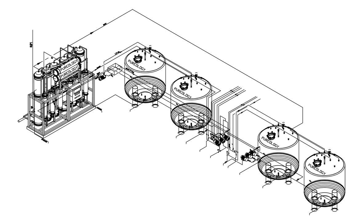
Purified Water System Line
Process Piping Line
Services
Contacts
Engineering
Home
/
Engineering
/ Purified Water System Line
Purified Water System Line